Leased

8 Eton Avenue, Boondall

$400 per Week

3 2 1

Lowset Family Home In College Green

This property is located in a quiet pocket of Boondall with easy access to transport - both train and bus
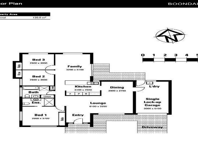
- 3 Bedrooms
- 2 Bathrooms(Encl Ensuite)
- Separate Lounge/Dining
- Fully fenced yard
- Sorry, No pets
- Single lock up garage with parking space for an additional vehicle
- Just minutes from shopping centres & schools
- plus easy access to The Brisbane Entertainment Centre and the Gateway Motorway

Please call our office to register your details, as inspections are due to cancellation or change of time.

Features

Fenced
3 2 1

Details

Available Leased
Address 8 Eton Avenue, Boondall
Price $400 per Week
Property Type Rental
Property ID 2405
Category House

Tools

Share This Property