Leased

8 Eton Avenue, Boondall

$400 per Week

3 2 1

Lowset Family Home in College Green

This Home Features:

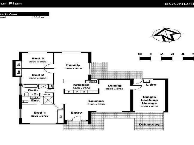
- 3 Bedrooms
- 2 Bathrooms (Encl Ensuite)
- Separate Lounge/Dining
- Good sized kitchen
- Fully fenced yard
- Sorry, No pets
- Single lock up garage with parking space for an additional vehicle
- Just minutes from shopping centres & schools
- Easy access to The Brisbane Entertainment Centre and the Gateway Motorway

Please register your details if you would like to attend as inspections are due to cancellation or change of time.

Features

Secure Parking Fenced
3 2 1

Details

Available Leased
Address 8 Eton Avenue, Boondall
Price $400 per Week
Property Type Rental
Property ID 2300
Category House

Tools

Share This Property